ระบบไฮดรอลิกใช้พลังงานความหลากหลายของเครื่องจักรอะแดปเตอร์ไฮดรอลิกเป็นส่วนประกอบที่สำคัญที่ทำให้แน่ใจว่าการถ่ายโอนของเหลวภายใต้แรงกดดันอย่างรุนแรง
Wayfong'sอะแดปเตอร์ไฮดรอลิกเป็นอุปกรณ์พิเศษที่ใช้ในการเชื่อมต่อส่วนประกอบภายในระบบไฮดรอลิก ฟังก์ชั่นหลักของพวกเขาคือเพื่อให้แน่ใจว่าซีลที่ปลอดภัยและมีความสมบูรณ์สูง หากไม่มีขั้วต่อที่เหมาะสมระบบจะไม่สามารถทำงานได้อย่างปลอดภัยและมีประสิทธิภาพ
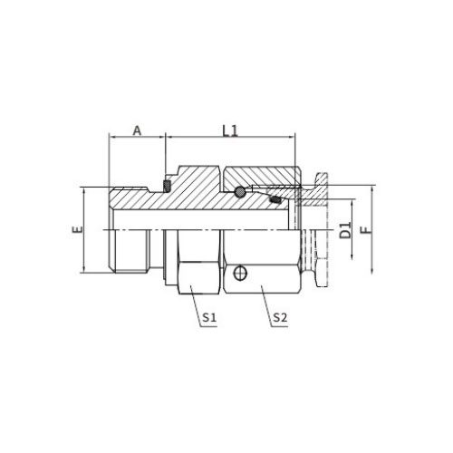
การเชื่อมต่อ: อุปกรณ์ไฮดรอลิก Wayfong เชื่อมต่อส่วนประกอบกับขนาดพอร์ตประเภทเธรดหรือมาตรฐานการเชื่อมต่อที่แตกต่างกัน
การเปลี่ยนแปลงทิศทาง: ข้อศอกและ T-fittings ช่วยให้ท่อและท่อสามารถกำหนดเส้นทางรอบสิ่งกีดขวางลดความเครียดและการปรับพื้นที่ให้เหมาะสม
การปิดผนึก: ผลิตภัณฑ์เหล่านี้ใช้วิธีการปิดผนึกเฉพาะเพื่อป้องกันการรั่วไหลภายใต้แรงกดดัน
ความสมบูรณ์ของระบบ: การเลือกและการติดตั้งการติดตั้งที่ถูกต้องเป็นสิ่งสำคัญในการรักษาความดันของระบบและลักษณะการไหล
| มาตรฐาน | คำย่อ | ประเภทเธรด | วิธีการปิดผนึก | แอปพลิเคชันทั่วไป |
| JIC / SAE 37 ° | jic | 37 ° Flare | เปลวไฟโลหะกับโลหะ | US Industrial, Mobile EQPT |
| SAE ตรงด้ายโอริง | ลูกโลก | ตรง (ขนาน) | โอริงเจ้านาย (แมวน้ำโอริง) | ระบบแรงดันสูง |
| ซีลโอริงใบหน้า | orfs | ตรง (ขนาน) | ใบหน้าแบนกับร่องโอริง | แอปพลิเคชันที่ไวต่อการรั่วไหล |
| NPT / NPTF | NPT | เกลียวท่อเรียว | การเปลี่ยนรูปแบบเธรด (NPT), แก้ไข (NPTF) | การเชื่อมต่อท่อทั่วไปของสหรัฐอเมริกา |
| BSPP | BSPP | ตรง (ขนาน) | การปิดผนึกเครื่องซักผ้าหรือโอริง | สหราชอาณาจักร/ยุโรป/เอเชีย - แรงกดดันต่ำ |
| BSPT | BSPT | เกลียวท่อเรียว | การเสียรูปของด้าย | สหราชอาณาจักร/ยุโรป/เอเชีย - สื่อกลาง |
| ตัวชี้วัด | ตัวชี้วัด | ตรง/เรียว | โอริง, เครื่องซักผ้า, ที่นั่งกรวย (DIN) | เครื่องจักรยุโรป |
| จาก / เมตริก | จาก | โคน 24 ° | กรวยโลหะกับโลหะ | อุตสาหกรรมยุโรป |

อุปกรณ์ตรง: เชื่อมต่อส่วนประกอบเป็นเส้นตรง เราใช้สิ่งเหล่านี้สำหรับการแปลงขนาดหรือเธรด
อุปกรณ์ข้อศอก: เปลี่ยนทิศทางของการไหลของของไหลผ่านพื้นที่แคบ ๆ หรือสิ่งกีดขวาง
Tee Fittings: สร้างการเชื่อมต่อสาขาช่วยให้ของเหลวไหลในสองทิศทางจากแหล่งเดียว
อุปกรณ์ข้าม: สร้างสี่แยกสี่ทางในวงจรไฮดรอลิก
อุปกรณ์กำแพงกั้น: ออกแบบมาเป็นหลักสำหรับการผ่านแผงผนังหรืออ่างเก็บน้ำให้จุดเชื่อมต่อทั้งสองด้าน
อุปกรณ์หมุน: อนุญาตให้ส่วนประกอบที่เชื่อมต่อหมุนได้อย่างอิสระลด kinking และความเครียดบนท่อ